A Luxury City Break with a Magical View - Melbourne
Waking to the soothing sound of waves, you step out of your surf house onto Australia’s golden sands. The salty breeze fills the air as the sun rises over the horizon. Whether staying in a beachfront surf house, a luxurious seaside villa, or a cozy eco-retreat nestled in the rainforest, every accommodation here blends comfort with adventure. Spend days catching waves, hiking lush trails, or exploring vibrant coastal towns. Australia’s stays aren’t just places to sleep. Try surfhouses and more!
A Luxury City Break with a Magical View
Melbourne 350 William Street 2805
WiFi
We speak
RU
10.0/10
WiFi
We speak
RU
10.0/10
In a central area of Melbourne,within a short distance of Melbourne City Conference Centre and State Library of Victoria, A Luxury City Break with a Magical View offers free WiFi, air conditioning and household amenities such as a dishwasher and coffee machine. Featuring a terrace, the apartment is close to several noted attractions, around less than 1 km from Southern Cross Station, a 14-minute walk from Block Arcade Melbourne and 1.7 km from Federation Square. The property is non-smoking and is situated 600 metres from Melbourne Central Station.
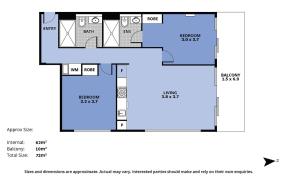
The spacious apartment comes with 2 bedrooms, 2 bathrooms, bed linen, towels, a flat-screen TV, a dining area, a fully equipped kitchen, and a balcony with city views. This apartment also has a patio that doubles up as an outdoor dining area.
Popular points of interest near the apartment include Southbank Promenade, Flinders Street Station and Marvel Stadium. Essendon Fields Airport is 11 km away.
The hotel day starts from hour 15:00 and ends at 10:00.
This property will not accommodate hen, stag or similar parties.
Managed by a private host
Two-Bedroom Apartment. This spacious apartment consists of 1 living room, 2 separate bedrooms and 2 bathrooms with a hairdryer and free toiletries. Guests can make meals in the kitchen that is equipped with a stovetop, a refrigerator, a dishwasher and kitchenware. This apartment is air-conditioned and features a seating area with a flat-screen TV, a washing machine, a tea and coffee maker, a dining area, as well as a wardrobe. The unit offers 2 beds.
Air conditioning
Cashless payment available
Internet services
Invoice provided
Terrace
WiFi
WiFi available in all areas
Staff follow all safety protocols as directed by local authorities
Free WiFi
Non-smoking throughout
First aid kit available
Non-smoking rooms
Contactless check-in/check-out
