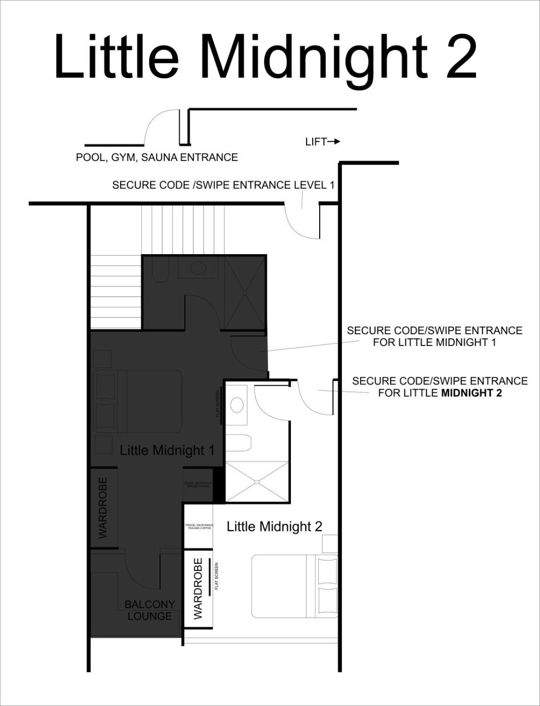
Little Midnight 2 - Canberra
Waking to the soothing sound of waves, you step out of your surf house onto Australia’s golden sands. The salty breeze fills the air as the sun rises over the horizon. Whether staying in a beachfront surf house, a luxurious seaside villa, or a cozy eco-retreat nestled in the rainforest, every accommodation here blends comfort with adventure. Spend days catching waves, hiking lush trails, or exploring vibrant coastal towns. Australia’s stays aren’t just places to sleep. Try surfhouses and more!
Little Midnight 2
Canberra 1 Elouera Street
WiFi
Pool
Spa/wellness
Parking
Rooms for singles
We speak
8.1/10
WiFi
Pool
Spa/wellness
Parking
Rooms for singles
We speak
8.1/10
Situated right in the heart of Canberra, less than 1 km from Canberra Centre, Little Midnight 2 features air-conditioned accommodation with free WiFi and a flat-screen TV. This apartment also has a heated pool. The apartment provides an indoor pool with a fence, as well as a sauna and luggage storage space.
Towels and bed linen are available in the apartment. The accommodation is non-smoking.
National Convention Centre Canberra is 1.6 km from the apartment, while Anzac Parade is 2.8 km from the property. Canberra Airport is 8 km away.
The hotel day starts from hour 15:00 and ends at 10:00.
This property will not accommodate hen, stag or similar parties.
Managed by a private host
Queen Studio. The studio provides air conditioning, a tea and coffee maker, as well as a private bathroom featuring a shower and a hairdryer. The unit offers 1 bed.
Steam room
Linens, towels and laundry washed in accordance with local authority guidelines
Accessible parking
Use of cleaning chemicals that are effective against Coronavirus
Physical distancing rules followed
Property is cleaned by professional cleaning companies
Internet services
Staff follow all safety protocols as directed by local authorities
WiFi
Parking
Free WiFi
Non-smoking rooms
Fence around pool
Swimming pool
Guest accommodation sealed after cleaning
Non-smoking throughout
Sauna
Heating
All plates, cutlery, glasses and other tableware have been sanitized
Indoor pool (all year)
Private check-in/check-out
Swimming pool
Luggage storage
Express check-in/check-out
Invoice provided
Parking on site
Hand sanitizer in guest accommodation and key areas
Heated pool
Indoor pool
Air conditioning
First aid kit available
WiFi available in all areas
Cashless payment available
Guest accommodation is disinfected between stays
Contactless check-in/check-out
Sun loungers or beach chairs
